Description
Liberia, Guanacaste, Costa Rica Real Estate Sale | Venta
Escape to Sustainable Living: Eco-Community in the Mountains of Costa Rica
Welcome to Rancho San Roque, a sanctuary in the heart of the lush mountains of Costa Rica, where sustainable living meets unparalleled natural beauty. Nestled amid 15 hectares of pristine landscape, our eco-community offers the perfect retreat for those seeking an off-grid lifestyle surrounded by like-minded neighbors.
LocationOur community is situated in the stunning mountains of Costa Rica, offering breathtaking panoramic views and a serene environment ideal for reconnecting with nature. Away from the hustle and bustle of urban life, yet conveniently accessible. Located just 30 minutes from the vibrant center of Liberia, 45 minutes from the international airport, and 1 hour from the best beaches, you’ll enjoy easy access to urban amenities while being immersed in nature’s beauty.
Sustainable LivingAt the core of our community is a commitment to sustainable living practices. We have designed our homes and infrastructure to minimize environmental impact while maximizing comfort and convenience. Our off-grid setup uses private water sources and solar energy, ensuring residents can live in harmony with nature without sacrificing modern amenities.
Permaculture DesignEmbracing permaculture principles, our community is thoughtfully designed to work with the natural environment, rather than against it. From eco-friendly gardens to native landscaping, every aspect of our community is carefully planned to foster biodiversity, conserve resources, and create a thriving ecosystem.
Like-Minded NeighborsOne of the greatest joys of living in our community is the sense of camaraderie and shared values among residents. Whether you are passionate about sustainability, outdoor adventure, or simply enjoying the beauty of nature, you will find like-minded neighbors who share your interests and values.
Your Sanctuary AwaitsEscape the stress of modern life and embark on a journey towards sustainable living in the mountains of Costa Rica. Join our vibrant community and discover a new way of life that is in harmony with nature and your fellow inhabitants.
Why Choose Rancho San Roque?
Unmatched Beauty: Wake up to stunning views of lush forests and rolling hills, with the sounds of wildlife as your soundtrack.
Peaceful Seclusion: Get away from the city hustle and immerse yourself in the tranquility of nature.
Eco-Friendly Amenities: Enjoy modern conveniences while minimizing your ecological footprint with off-grid utilities and sustainable practices.
Community Connection: Forge meaningful connections with like-minded neighbors who share your values and aspirations.
Contact UsReady to make the move to sustainable living? Contact our team today for more information about available properties and the unique lifestyle that awaits you in our eco-community. Your sanctuary in the mountains awaits!
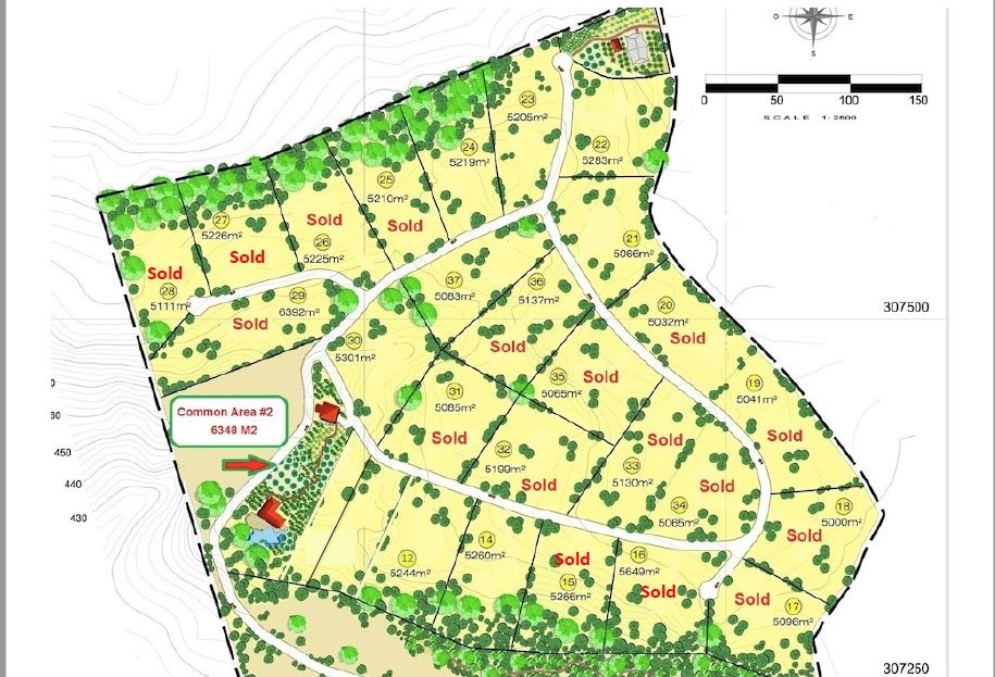
Available Lots for Sale: 21, 22, 23, 24.Price: $65,000.00 each lot.
MLS number: 400222857013
en español:
LOTES PARA VENTA – ECO COMUNIDAD, RINCÓN DE LA VIEJA, GUANACASTE
Escápate a la vida sostenible: Eco-Comunidad en las montañas de Costa Rica
Bienvenido a Rancho San Roque, un santuario en el corazón de las exuberantes montañas de Costa Rica, donde la vida sostenible se encuentra con una belleza natural sin igual. Ubicado en medio de 15 hectáreas de paisaje prístino, nuestra eco-comunidad ofrece el refugio perfecto para aquellos que buscan un estilo de vida fuera de la red rodeado de vecinos con ideas afines.
UbicaciónNuestra comunidad se encuentra en las impresionantes montañas de Costa Rica, ofreciendo impresionantes vistas panorámicas y un ambiente sereno que es ideal para volver a conectar con la naturaleza. Lejos del ajetreo y el bullicio de la vida urbana, pero convenientemente accesible. Situado a sólo 30 minutos del vibrante centro de Liberia, a 45 minutos del aeropuerto internacional y a 1 hora de las mejores playas, disfrutará de fácil acceso a los servicios urbanos sin dejar de estar inmerso en la belleza de la naturaleza.
Vida sostenibleEn el núcleo de nuestra comunidad se encuentra el compromiso con las prácticas de vida sostenibles. Hemos diseñado nuestras casas y la infraestructura para minimizar el impacto ambiental al tiempo que maximiza la comodidad y conveniencia. Nuestra configuración fuera de la red utiliza fuentes de agua privadas y energía solar, garantizando que los residentes puedan vivir en armonía con la naturaleza sin sacrificar las comodidades modernas.
Diseño permaculturalAdoptando los principios de la permacultura, nuestra comunidad está cuidadosamente diseñada para trabajar con el entorno natural, en lugar de contra él. Desde los huertos ecológicos hasta el paisajismo autóctono, cada aspecto de nuestra comunidad está cuidadosamente planificado para fomentar la biodiversidad, conservar los recursos y crear un ecosistema próspero.
Vecinos afinesUna de las mayores alegrías de vivir en nuestra comunidad es el sentimiento de camaradería y los valores compartidos entre los residentes. Tanto si le apasiona la sostenibilidad, la aventura al aire libre o simplemente disfrutar de la belleza de la naturaleza, encontrará vecinos afines que comparten sus intereses y valores.
Su santuario le esperaEscapa del estrés de la vida moderna y embárcate en un viaje hacia la vida sostenible en las montañas de Costa Rica. Únase a nuestra vibrante comunidad y descubra una nueva forma de vida que está en armonía con la naturaleza y sus compañeros habitantes.
¿Por qué elegir Rancho San Roque?
Belleza sin igual: Despiértese con unas vistas impresionantes de bosques frondosos y colinas onduladas, con los sonidos de la vida salvaje como banda sonora.
Aislamiento tranquilo: Aléjese del ajetreo de la ciudad y sumérjase en la tranquilidad de la naturaleza.
Servicios respetuosos con el medio ambiente: Disfrute de las comodidades modernas al tiempo que minimiza su huella ecológica con los servicios públicos fuera de la red y las prácticas sostenibles.
Conexión con la comunidad: Forje conexiones significativas con vecinos afines que comparten sus valores y aspiraciones.
Lotes disponibles para la venta: 21,22,23,24.Precio: $65,000.00 cada lote.























