Description
Atenas, Alajuela, Costa Rica Real Estate Sale | Venta
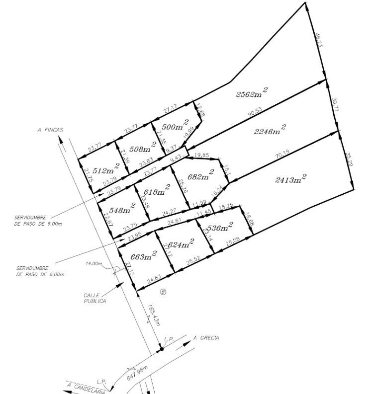
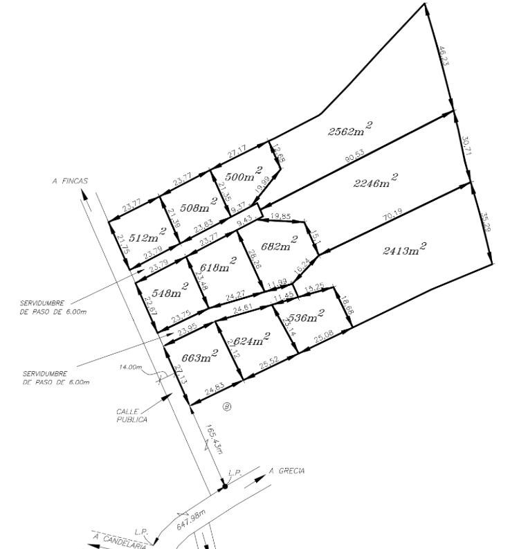
Lots in country residential in Atenas with very good infrastructure with cobblestone streets and perimeter with gate and all services. Wide-use land use for large lots with high-density residential or apartment land use. They are less than 7 minutes from Atenas Center.
618m2 $77,250548m2 $68,500682m2 $85,1252246m2 $202,1402562m2 $230,5802413m2 $277,495
MLS number: 40005152706
en español:
Lotes residencial en el campo de Atenas
Lotes en residencial campestre de Atenas con muy buena infraestructura con calles de adoquines y perímetro con portón y todo los servicios. El uso de suelo con uso amplio para los lotes grandes con uso de suelo de densidad alta de residencial o apartamentos. Quedan a menos de 7 minutos de Atenas Centro.
618m2 $77,250548m2 $68,500682m2 $85,1252246m2 $202,1402562m2 $230,5802413m2 $277,495




















